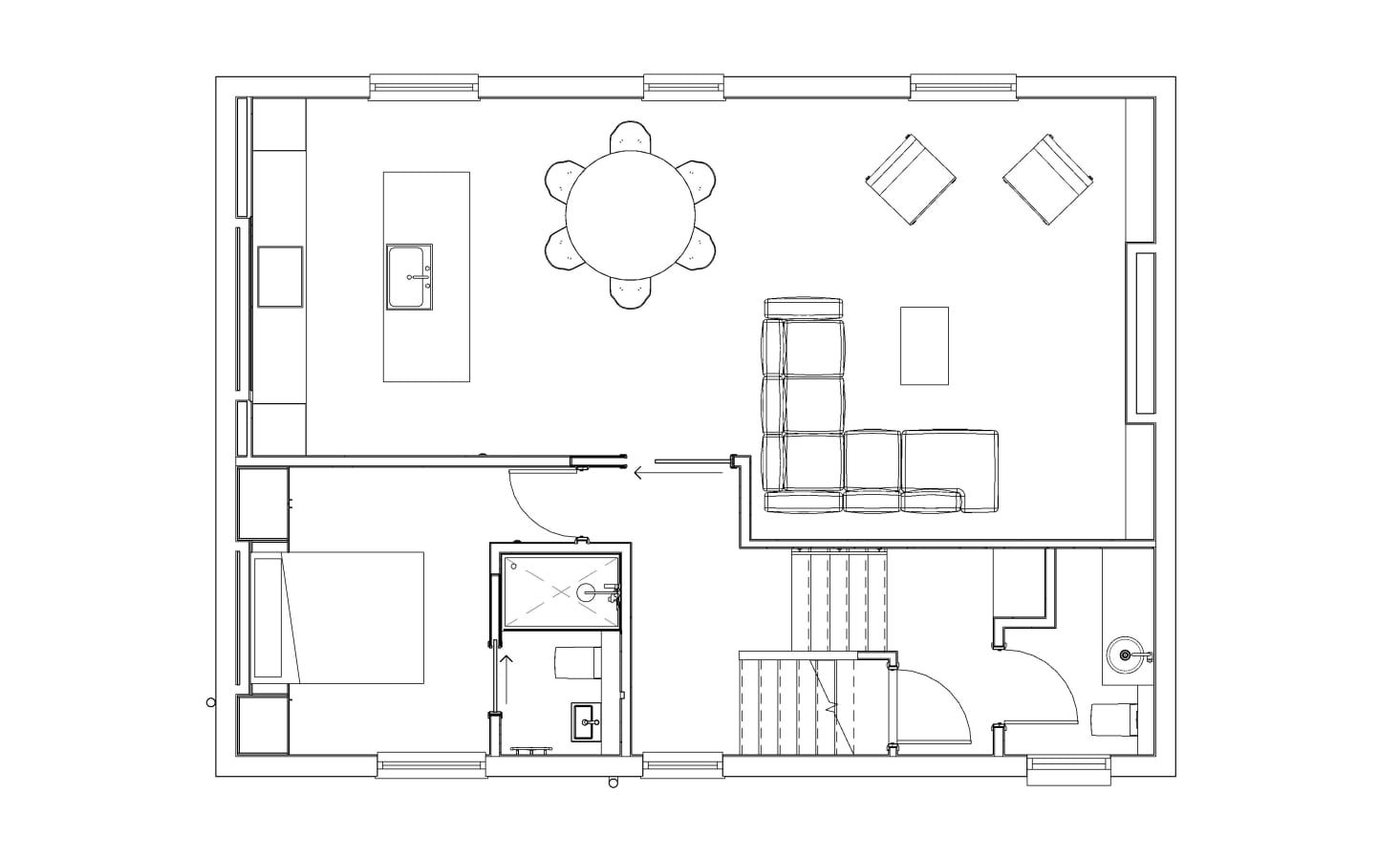
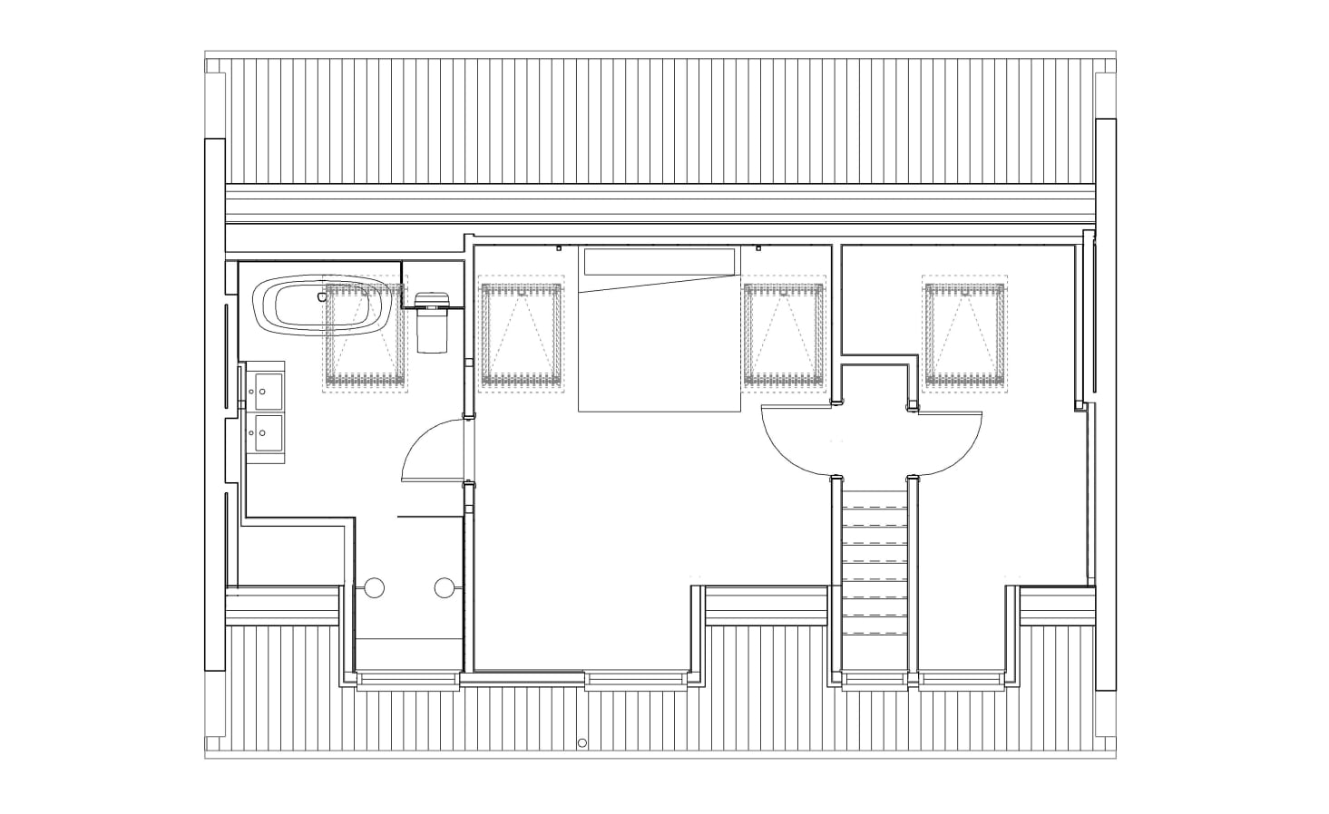
London, North Kensington This renovation project elegantly transformed a second-floor apartment within a historic townhouse into a spacious three-bedroom duplex. Spanning the upper two levels, this revamped apartment now boasts two bedrooms with en-suite bathrooms, ensuring both comfort and privacy. An additional bedroom provides flexibility for guests or other uses. The open kitchen seamlessly integrates with the living space, creating an inviting atmosphere. Moreover, residents benefit from a generously sized living area, an extra utility room, and a convenient guest WC.

Photos: Domus Nova

Contact

info@robertpotz.com
www.robertpotz.com

+44(0)7789703765 
119 Coleman Road
London
SE5 7TF





Disclaimer

© 2026 Robert Potz Architects